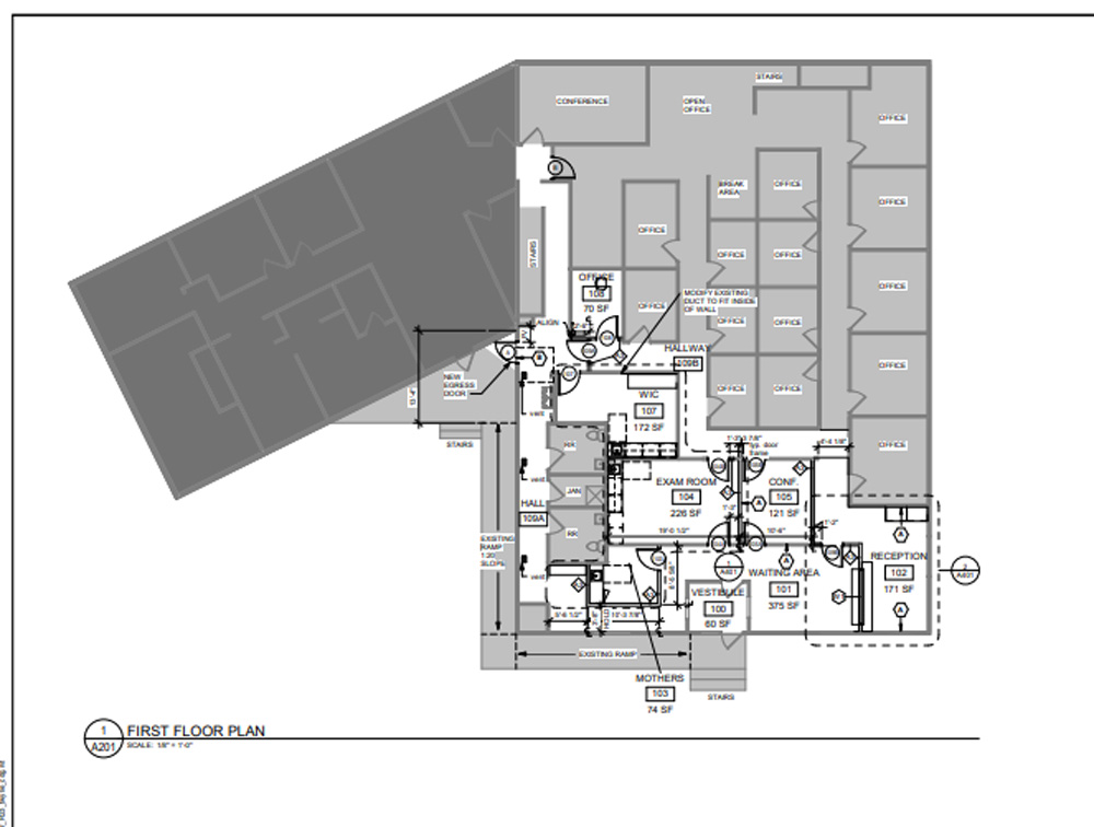
At the February 4 Houston County Commission meeting, the bid for the Public Health and Community Services interior improvement project was accepted. The scope of the project includes remodeling the front office area of the building.
“It’s going to make space better for all services that we operate,” said Public Health Supervisor Jordan Knoke. “We’re also increasing security access points throughout the building and eliminating access to the back half.”
County Engineer Brian Pogodzinski explained that the county received four bids, noting that three of the bids are within 10% of each other, making for a very competitive bidding process. The low base bid, from Wieser Brothers General Contractor, Inc. is $198,500.00, with an additional $9,500.00 for the installation of crown molding.
Houston County Public Health and Community Services Director John Pugleasa confirmed that the funds must be spent by June 30.
Chairman Eric Johnson called the meeting to order at 9 a.m. followed by the Pledge of Allegiance. All members were present: Cindy Wright, Eric Johnson, Kurt Zehnder, Bob Schuldt, and Greg Myhre. The minutes from the January 28 regularly scheduled meeting of the Houston County Commission were approved as written.
The seats in the board room were filled with Houston County residents interested in action item number two. Commissioner Myhre proposed discussing and acting on future changes to the quarter quarter rule. He started off by stating, “Getting an awful lot of calls from people that want to have their children move back to the farms, help take care of them. I can’t see anything wrong with that. I mean we are all going to get old.” He continued to say that it could bring in more tax money and then maybe residents won’t have to pay as much in property taxes. He asked, “Don’t we want them to come back to Houston County and keep them here?”
During opening public comment, Houston County residents, George Johnston and Shane Schumacher voiced their concerns regarding possible changes to the quarter quarter rule. Johnston questioned why this topic is being brought up again when the county’s comprehensive land use plan was updated a little over a year-and-a-half ago and required a lot of time and effort. He added that he knows that there are farmers that will go “belly up” out there. Schumacher echoed Johnston’s views.
The board agreed that the comprehensive land use plan is a living document and should be reviewed on a regular basis – either yearly or every other year.
Commissioner Myhre made a motion that the county look at making a change to the quarter quarter rule, specifically one house for every 20 acres, and making sure it is done right this time. His motion died for lack of a second.
In other business, the council:
• Approved the text amendment to the zoning ordinances to reflect uses recently adopted in the Cannabis Business Ordinance.
• Authorized Houston County Emergency Management Director Mark Olson to sign and execute the Emergency Performance Grant (EMPG) agreement, thereby assuming all contractual obligations on behalf of Houston County. Olson noted that this is an annual agreement at a cost of $18,581, and it is for the 2023 grant, which is a matching grant.
• Adopted the Houston County 2024 Hazard Mitigation Plan. To receive hazard mitigation funds through FEMA or the state, counties and cities, must have an updated hazard mitigation plan. Olson explained that the last plan was created in 2015. He noted that the five-year renewal process got delayed due to Covid. The process for the current plan began in April 2023.
• Accepted a $10,000 MDVA grant for the Houston County Veteran Services Office for 2025.
• Approved Sheriff Brian Swedberg’s request to terminate the Central Square Pro Suite contract and seek return of amount paid to date, pending review by the County Attorney.
• Accepted the retirement of Houston County Recorder Mary Betz. Commissioners thanked Betz for 23 years of service to the residents of Houston County.
• Review and approved the payments as presented by Carol Lapham.
The commission meeting was unanimously adjourned at 10:25 a.m.


